Ulubione projekty

Twoja lista jest pusta

Dodano projekt

Usunięto projekt

W roli głównej – dom EX 7!


EX 7 – doskonała propozycja dla miłośników nowoczesnego designu oraz energooszczędnych rozwiązań.

 

arch. Anna Prokopowicz, Pracownia Projektowa ARCHIPELAG



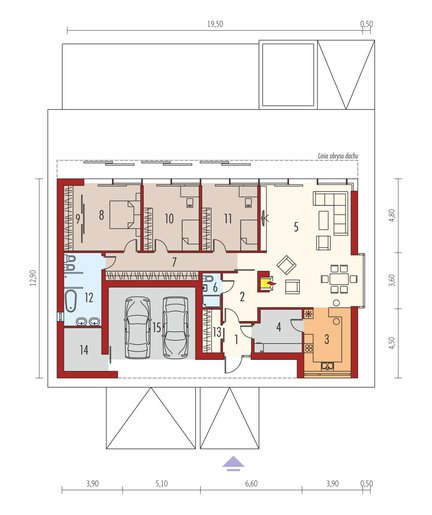
Układ funkcjonalny:

Strefa dzienna:

- salon z kominkiem

- jadalnia

- kuchnia ze spiżarnią

- toaleta

- pomieszczenie gospodarcze


Strefa nocna:

- trzy komfortowe sypialnie

- w tym jedna z własną garderobą i łazienką, a także komfortowa łazienka oraz garderoba.

+ dodatkowo:

- pomieszczenie gospodarcze, dostępne tylko z zewnątrz

- miejscem na dwa stanowiska samochodowe

Dom energooszczędny, wyposażony w:

- wentylację mechaniczną z rekuperacją

- gruntową pompę ciepła

- system solarny

Dom dla:

4-osobowej rodziny

 

Opis:

Dom EX7 zaprojektowany w duchu modernistycznego minimalizmu koresponduje z najnowszymi trendami w architekturze. Chłodna biel tynku, proste, smukłe linie, a dla kontrastu – ciepłe, drewniane akcenty łączą się w harmonijną kompozycję elewacji. Od strony ogrodowej zaplanowano imponujące przeszklenia, które zapraszają do wnętrz naturalne światło oraz dobrą, zieloną energię płynącą z natury. Dużym atutem domu jest elastyczny układ funkcjonalny, który umożliwia mieszkańcom swobodę aranżacji. Atrakcyjną strefę rekreacyjną tworzy przestronny taras z ciekawie zaprojektowanymi żaluzjami, które pełnią funkcję dekoracyjną, a dodatkowo osłaniają domowników przed nadmiernym nasłonecznieniem. 


arch. Anna Maria Prokopowicz arch. Anna Maria Prokopowicz

Atuty projektu okiem eksperta:

  • Energooszczędny charakter domu – pompa ciepła, wentylacja mechaniczna z odzyskiem ciepła, system solarny, lepsze ocieplenie przegród zewnętrznych
  • Atrakcyjny wygląd zewnętrzny – prosta, elegancka bryła, korespondująca z duchem modernistycznej architektury
  • Duże przeszklenia wzbogacające elewacje frontową zapewniają jednocześnie maksymalne doświetlenie wnętrza domu
  • Elastyczny i ergonomiczny układ funkcjonalny
  • Wyraźne oddzielenie strefy nocnej od dziennej
  • Komfortowy, reprezentacyjny salon z kominkiem oferujący wiele możliwości aranżacji
  • Duże, wygodne sypialnie, w tym jedna z własną garderobą
  • Ciekawie zaprojektowane przesuwne żaluzje zewnętrzne
  • Dwa wygodne i praktyczne pomieszczenia gospodarcze
  • Możliwość wykonania kuchni jako otwartej lub zamkniętej, w zależności od potrzeb i indywidualnych upodobań domowników
  • Zadaszona wiata na dwa samochody

 

 

Bezpłatna pomoc architekta

Wypełnij formularz, skontaktujemy się z Tobą.

Zamawiając usługi forum i dzienników budowy, przyjmujesz do wiadomości i wyrażasz zgodę na świadczenie tych usług i przetwarzanie przez Usługodawcę, którym jest Pracownia Projektowa ARCHIPELAG A. Wójciak, R. Wójciak Sp. J., jako Administratora danych, podanych w formularzu danych osobowych, na zasadach wskazanych w Regulaminie i Polityce Prywatności serwisu ARCHIPELAG.pl.

Jeśli chcesz także otrzymywać bonusy i informacje dotyczące akcji promocyjnych naszych i naszych Partnerów, wyraź zgodę dodatkową i zaznacz odpowiednie pole. Wyrażam zgodę na przetwarzanie moich danych osobowych przez administratora, którym jest Pracownia Projektowa ARCHIPELAG A. Wójciak, R. Wójciak Sp. J. z siedzibą: ul. M. Smoluchowskiego 56/3, 50-372 Wrocław, nr KRS 0000123673, NIP: 897-16-05-744, REGON: 931987209:

Na podstawie art. 13 Rozporządzenia Parlamentu Europejskiego i Rady (UE) 2016/679 z dnia 27 kwietnia 2016 r. w sprawie ochrony osób fizycznych w związku z przetwarzaniem danych osobowych i w sprawie swobodnego przepływu takich danych oraz uchylenia dyrektywy 95/46/WE (RODO) informujemy Cię, że (przeczytaj klauzulę informacyjną):

czytaj całość ›
Pola oznaczone gwiazdką (*) są obowiązkowe do wypełnienia